Zdravstvena postaja Hrpelje bo doživela temeljito prenovo. Občina Hrpelje – Kozina je pristopila k projektu investicijskega vzdrževanja Zdravstvene postaje Hrpelje, ki obsega prvo fazo preureditve Zdravstvene postaje Hrpelje, in sicer kletne etaže, pritlične etaže in nadstropne etaže ter vgradnjo dvigala.
Cilj investicijskega vzdrževanja je zagotoviti:
- enake pogoje za zadovoljevanje vseh občanov v skladu z razvojnimi cilji države in primarne ravni zdravstvene dejavnosti,
- kakovostne storitve, varnost, dostopnost in enake možnosti za zdravljenje vseh občanov,
- urediti prostorske možnosti za kakovostno izvajanje zdravstvenih storitev in povečanje oziroma izboljšanje odzivnosti uslužbencev;
- izboljšanje pogojev dela zaposlenih,
- doseganje višje kakovosti poslovanja in zaposlovanja,
- enostavnejši dostop ranljivim skupinam.
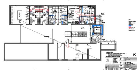
V sklopu investicijskega vzdrževanja bo poskrbljeno za obnovo kletne etaže, pritlične etaže in nadstropne etaže ter vgradnjo dvigala.
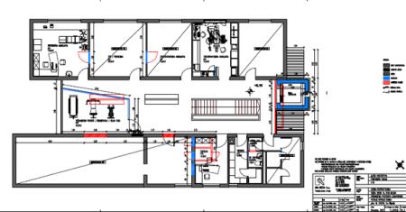
V kletni etaži investicija obsega ureditev pralnice ter prezračevanja prostora, garderob, kopalnic, dežurne ambulante, ki vključuje poleg sprejemne sobe ter sobe za zdravnika tudi čakalnico ter sanitarije za obiskovalce (primeren tudi za invalide).
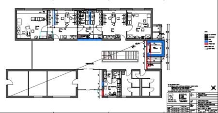
V pritličju bodo obnovljene previjalnica, zdravniški sobi, preurejene bodo sestrski sobi, ki bosta po novem namenjeni tudi sprejemu pacientov, Ob tem bo v pritličju potekala preureditev nekdanjega filtrskega prostora v kovidno ambulanto s tremi prostori, (manjši filtrni prostor, namenjen preoblačenju lečečega zdravnika, prostor kovidne ambulante ter manjše sanitarije).
V nadstropju je predvidena ureditev referenčne ambulante, ureditev prehodov med referenčno ambulanto, prostorom ZVC/preventiva ter med obstoječo zobozdravstveno ambulanto, urejen bo večnamenski prostor (fizioterapija/sejna soba), do prostorov obstoječe fizioterapije pa bo dodan nov vhod iz skupne čakalnice. Obstoječi shrambni prostor in sanitarije bodo preurejeni; del prostora bo tudi po izvedbi investicije namenjen shrambi, sanitarni del pa bo priključen sklopu sanitarnega bloka za obiskovalce. Prav tako je v nadstropju predvidena ureditev ambulante za psihologa.
Na stavbo bo za zagotavljanje dostopa gibalno oviranim nameščeno dvigalo, v sklopu zunanje ureditve v 2. fazi investicije pa je predvidena ureditev parkirnih površin z dostopom do dvigala.
Občina Hrpelje-Kozina želi z investicijskim vzdrževanjem zagotoviti boljši in bolj funkcionalen izkoristek prostorov Zdravstvene postaje Hrpelje ter stavbo prilagoditi aktualnim potrebam prebivalstva ter strokovnim standardom zdravstvene stroke.
Projekt se je z izdelavo Dokumenta identifikacije investicijskega projekta začel izvajal v letu 2023 in se bo predvidoma zaključil v letu 2026, ko bo zaključena druga faza projekta, ki predvideva zunanjo ureditev. Ocenjena vrednost projekta znaša 893.990,01 evrov z DDV v stalnih cenah ter 767.110,96 EUR brez DDV ter 935.875,38 EUR z DDV v tekočih cenah.
Občina je investicijo prijavila na Javni razpis za sofinanciranje investicij na primarni ravni zdravstvenega varstva v Republiki Sloveniji. Ministrstvo za zdravje, Urad Republike Slovenije za nadzor, kakovost in investicije v zdravstvu bo tako izvedbo prenove sofinanciralo v višini 371.520,00 EUR.